
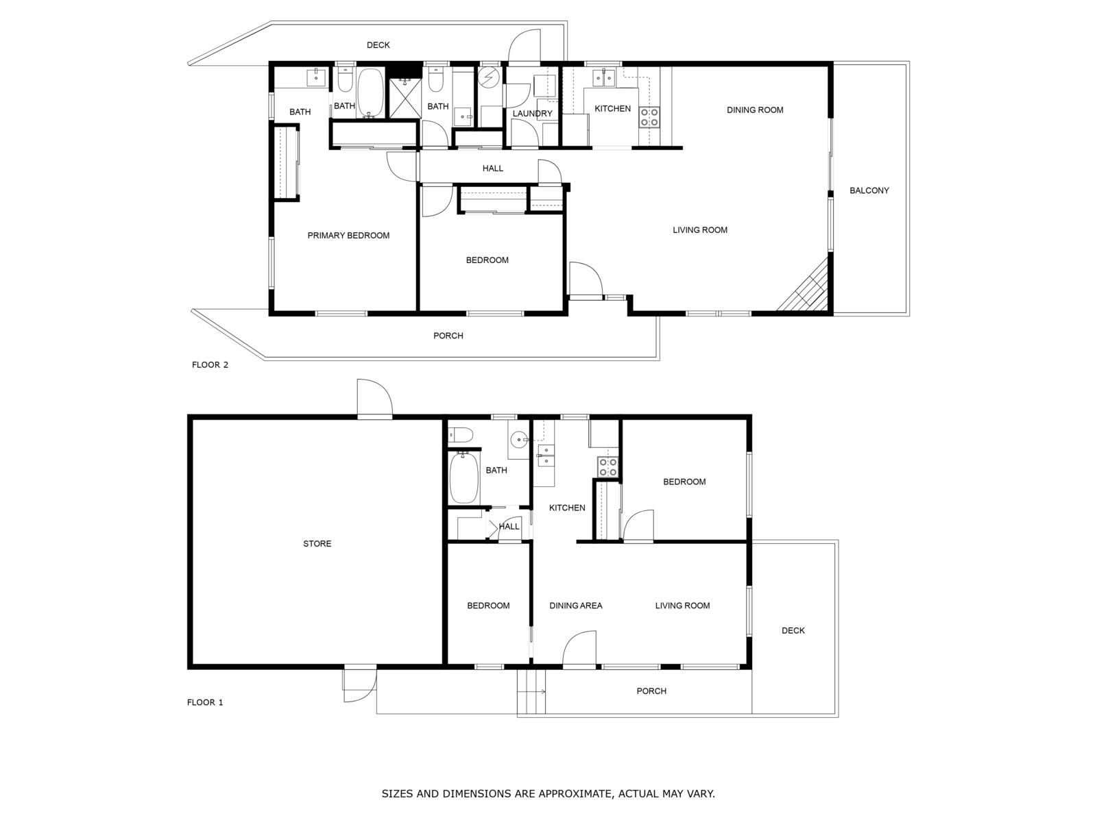
Tucked away among the picturesque Cambria pines, this unique property offers both serene living and excellent rental income. Featuring 3 bedrooms and 3 bathrooms in total, the home is thoughtfully configured with no interior stairs into two separate single-level income producing units —ideal for personal use, multigenerational living, or mid- and long-term rental opportunities.
The upper level welcomes you with an open-concept living space highlighted by beamed ceilings, a cozy fireplace with a decorative rock surround, and scenic views with glimpses of the ocean from a private wraparound deck. A full kitchen has a refrigerator, dishwasher, stove, with ample counter space. The primary suite includes dual closets and a private ensuite bath, while the second bedroom—currently used as an office—sits near a second full bathroom. A dedicated furnace with vents throughout heats the upper level.
Following the path to the lower level, you’ll find a charming guest unit complete with a living area, efficient kitchen with new refrigerator and stove, a single bedroom with views, a separate full bath, and cozy guest nook or study. From this level enjoy peaceful views and the fresh coastal air from another private wraparound deck. A dedicated wall furnace at the living room heats the lower level.
Additional features of the property include under home storage and an indoor laundry room with separate entrance for use by tenants.
The backyard offers space for gardening, entertaining, or simply relaxing in the natural surroundings. Located in desirable Cambria East, this property is minutes from the village with its local shops, dining, and iconic Central Coast beaches.
Whether you're seeking a full-time residence, a vacation home, or an investment property, this versatile home is a rare find in a magical setting.